Casa indipendente in vendita

Ravenna, Via Jufina - Cruser
€ 298.000
Prezzo aggiornato
9 locali 9 locali
206 Mq 206 Mq
3 bagni 3 bagni

Casa indipendente in vendita

Ravenna, Via Jufina - Cruser

Descrizione annuncio

RAVENNA, località SANT'ALBERTO.

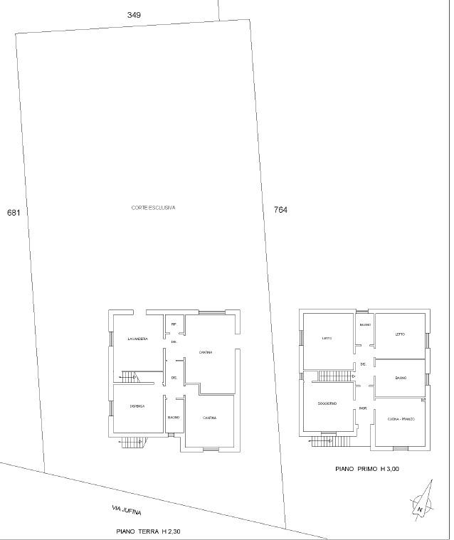
Alle porte di Sant'Alberto proponiamo in vendita una casa indipendente di circa 210 mq, di recente ristrutturazione.

Questa proprietà è divisa in due piani, al piano terra un interessante disposizione che potrebbe tranquillamente essere un secondo appartamento, mentre al primo piano troviamo soggiorno, cucina, 3 ampie camere da letto e 2 bagni.

Plus dell'immobile anche il fatto che offra un ampio giardino privato di circa 800 mq, ideale per chi cerca uno spazio verde da personalizzare; terreno tra l'altro edificabile, ad oggi per una superficie di circa 81 mq al piano:

Gli infissi nuovi in tutta la casa assicurano un'ottima efficienza energetica e isolamento acustico. Il tetto è stato recentemente rifatto a nuovo, è presente cappotto esterno su tutti i lati della casa, e per quanto riguarda l'interno ad oggi è stata portata a termine la ristrutturazione del primo piano, mentre il piano terra è ancora in uno stato di grezzo avanzato.

Questa casa rappresenta un'opportunità unica per chi desidera vivere in un contesto tranquillo, senza rinunciare alla comodità dei servizi cittadini, che sono per altro molto vicini; come permette anche la vicinanza alla città ed alle località di mare.

CHIAMACI per ulteriori informazioni o per fissare un appuntamento allo 0544.1885644 oppure invia una mail a raca0 e sarai ricontattato al più presto.

Ogni agenzia ha un proprio titolare ed è autonoma - Le presenti informazioni non costituiscono elemento contrattuale.

Mostra tutto

Nelle vicinanze

Trasporto pubblico Trasporto pubblico
Trasporto pubblico
2,6 Km
Scuole Scuole
Scuola Primaria Giovanni Pascoli
1,4 Km
Scuola Media Corrado Viali
1,5 Km
Farmacia Farmacia
Farmacia Guerrini
1,7 Km
Supermercati Supermercati
Conad
1,2 Km
Bar Bar
Giuly's bar
2,0 Km
Mostra tutto

Caratteristiche

Rif.:
61121005
Piano:
Basso di 2
Totale piani:
2
Box:
1
Posti auto:
2
Camere da letto:
3
Mostra tutto
Prezzo Prezzo
€ 298.000
Rata mutuo Rata mutuo
€ 1.405 / mese
Spese annue Spese annue
€ 0
Proponi il tuo prezzoProponi il tuo prezzo

Classe Energetica

Questo immobile è esente da classe energetica
Anno di costruzione:
1900
Riscaldamento:
Autonomo
Tipo impianto:
A radiatori
Tipo alimentazione:
Metano

Prezzo ridotto di €1 (4%%)

Ti interessa visionare l'immobile?

Fissa un appuntamento  Fissa un appuntamento

Richiedi informazioni

Clicca su Leggi per aprire l'informativa
* Questi campi sono obbligatori

Calcola il tuo mutuo

Semplice e senza impegno
Anticipo

( % )
Mutuo

( % )

pochi semplici passi

inserisci i tuoi dati
Questionario completato
Grazie per aver richiesto un appuntamento senza impegno con un nostro Consulente del Credito e Assicurativo.

Hai inserito correttamente tutti i dati necessari e a breve riceverai una e-mail con un link da convalidare per inviare i tuoi dati.
Affiliato
Domus Immobiliare Srl
Via Camillo Cavour, 42 48100 Ravenna (RA)

Il nostro staff


  • Matteo Chiesa
    Affiliato

  • Mattia Francesco Mauro
    Collaboratore
Via Camillo Cavour, 42 48100 Ravenna (RA)
Zona: Centro Storico-Teodorico-Mattei-Darsena-Forese
Mostra su mappa
Orari: Lun. - Ven. dalle 9.30 alle 13 e dalle 15 alle 19.30 / Sab. dalle 9.30 alle 13 e dalle 15 alle 18
Affiliato
Domus Immobiliare Srl
Via Camillo Cavour, 42 48100 Ravenna (RA)

2025 Tecnocasa Franchising S.p.A. - P. IVA 08365160152 - Via Monte Bianco 60/A 20089 Rozzano (MI). Ogni agenzia ha un proprio titolare ed è autonoma. Privacy policy | Policy utilizzo | Cookie policy