Casa indipendente in vendita

Ravenna, Via Cura - Centro
€ 670.000
8 locali 8 locali
272 Mq 272 Mq
2 bagni 2 bagni

Casa indipendente in vendita

Ravenna, Via Cura - Centro

Descrizione annuncio

RAVENNA, zona CENTRO.

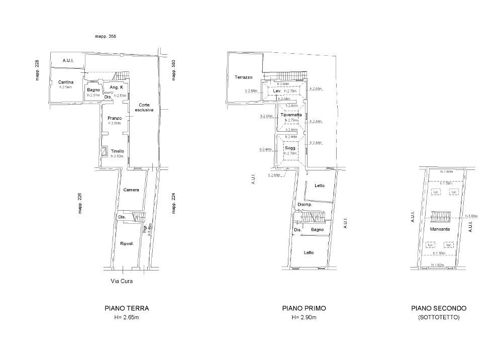
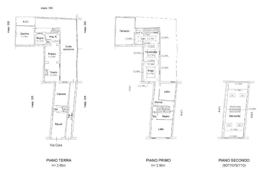
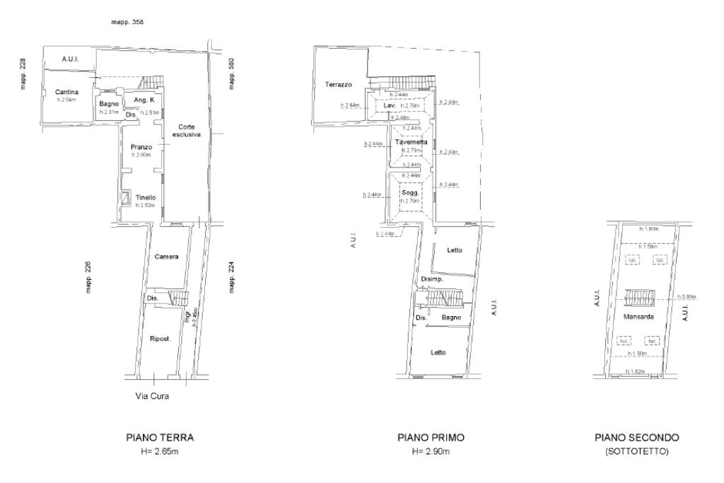
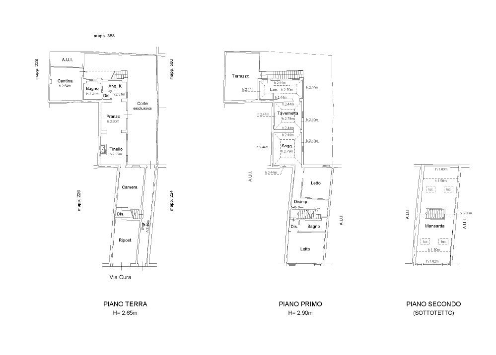
Nel cuore del centro storico di Ravenna, proponiamo in vendita una casa indipendente di circa 300 mq, di recente ristrutturazione.

L'immobile si sviluppa su un piano basso (terra) con un ingresso indipendente e composto da un locale tavernetta-soggiorno, cucina, bagno e camera.

Al primo piano invece si può accedere sia da una scala interna e sia da una scala esterna, che ha l'arrivo sull'ampio terrazzo.

Il piano 'nobile' è quindi composto da 2 camere da letto, un bagno, un locale cucina, soggiorno e un ultimo locale lavanderia.
Sempre da una scala interna in legno è possibile poi accedere alla mansarda, comunque alta, molto luminosa, nella quale si può tranquillamente realizzare un'altra zona camera o studio, o sala hobby, ed eventualemente un terzo bagno.

La proprietà è arricchita da un giardino privato al piano terra, perfetto per momenti di relax all'aperto; sempre al piano terra, con affaccio diretto su Via Cura, e collegato internamente alla casa, c'è un locale rispostiglio che può essere tranquillamente convertito a box.

Completano l'offerta due ampie cantine divise, utile per lo stoccaggio o come spazio aggiuntivo.

Questa soluzione rappresenta un'opportunità unica per vivere in una delle zone più affascinanti di Ravenna, con tutti i comfort di una casa moderna e indipendente, e soprattutto ristrutturata con finiture moderene e di pregio.

E' inoltre una buona opportunità anche come investimento, vista l'indipendenza dei due piani, e quindi volendo può essere sfruttata benissimo come due unità immobiliari, una al piano terra con suo accesso e una al primo piano più mansarda, e questo anche in ottica di mettere a redditto appunto una parte della proprietà.

CHIAMACI per ulteriori informazioni o per fissare un appuntamento allo 0544.1885644 oppure invia una mail a raca0 e sarai ricontattato al più presto.

Ogni agenzia ha un proprio titolare ed è autonoma - Le presenti informazioni non costituiscono elemento contrattuale.

Mostra tutto

Nelle vicinanze

Trasporto pubblico Trasporto pubblico
stazione di Ravenna
stazione di Ravenna
1,2 Km
Trasporto pubblico
320 m
Ravenna Baldini
Ravenna Baldini
600 m
Ricariche auto elettriche Ricariche auto elettriche
Eneldrive Porta Adriana
230 m
Eneldrive Ardea Purpurea
490 m
Eneldrive Tomba di Dante
710 m
Ravenna B.Alighieri | EnelX Fast
900 m
Ravenna Parcheggio ex macello | EnelX
1,1 Km
Scuole Scuole
Liceo Scientifico Alfredo Oriani
150 m
Scuola elementare Filippo Mordani
390 m
Ex Scuola "Istituto Olivetti"
440 m
Scuola primaria "Monsignor Morelli"
460 m
Università Degli Studi di Bologna
710 m
Farmacia Farmacia
Farmacia San Biagio
240 m
Farmacia Ghigi
280 m
Farmacia dell'Aquila
440 m
Santa Teresa
530 m
Farmacia del Portico
550 m
Ospedali Ospedali
Casa di cura "Domus Nova"
690 m
Santa Maria delle Croci
850 m
Pronto Soccorso
950 m
Casa di cura San Francesco
1,2 Km
Centro Iperbarico
2,4 Km
Supermercati Supermercati
Coop
830 m
Conad
1,2 Km
NaturaSì
1,8 Km
TuoDi Discount
1,9 Km
Discount alimentare
2,0 Km
Negozi Negozi
La Stamperia dei Pascucci
470 m
Il forno Argnani
480 m
Villaggio Globale
540 m
Coin
800 m
Eurospin - Discount
970 m
Bar Bar
Merikipe
100 m
Bar Cavour
300 m
Bar
420 m
La Tazza D'Oro
490 m
Dbar
500 m
Ristoranti Ristoranti
Bilancino Drogheria Di Pesce
270 m
Rustichello
290 m
Bistrot
290 m
Nuovo Scaì
330 m
Piadineria Mosaico
330 m
Mostra tutto

Caratteristiche

Rif.:
61101143
Piano:
Basso di 3
Totale piani:
3
Box:
1
Terrazzi:
1
Camere da letto:
3
Mostra tutto
Prezzo Prezzo
€ 670.000
Rata mutuo Rata mutuo
€ 3.163 / mese
Spese annue Spese annue
€ 0
Proponi il tuo prezzoProponi il tuo prezzo

Classe Energetica

F
F
F
F
F
F
F
F
F
EP globale non rinnovabile:
179.47 kW h/m² anno
EP globale rinnovabile:
0.36 kW h/m² anno
EP invernale del fabbricato:
EP estiva del fabbricato:
Anno di costruzione:
1950
Riscaldamento:
Autonomo
Tipo impianto:
A radiatori
Tipo alimentazione:
Metano

Ti interessa visionare l'immobile?

Fissa un appuntamento  Fissa un appuntamento

Richiedi informazioni

Clicca su Leggi per aprire l'informativa
* Questi campi sono obbligatori

Calcola il tuo mutuo

Semplice e senza impegno
Anticipo

( % )
Mutuo

( % )

pochi semplici passi

inserisci i tuoi dati
Questionario completato
Grazie per aver richiesto un appuntamento senza impegno con un nostro Consulente del Credito e Assicurativo.

Hai inserito correttamente tutti i dati necessari e a breve riceverai una e-mail con un link da convalidare per inviare i tuoi dati.
Affiliato
Domus Immobiliare Srl
Via Camillo Cavour, 42 48100 Ravenna (RA)

Il nostro staff


  • Matteo Chiesa
    Affiliato

  • Mattia Francesco Mauro
    Collaboratore
Via Camillo Cavour, 42 48100 Ravenna (RA)
Zona: Centro Storico-Teodorico-Mattei-Darsena-Forese
Mostra su mappa
Orari: Lun. - Ven. dalle 9.30 alle 13 e dalle 15 alle 19.30 / Sab. dalle 9.30 alle 13 e dalle 15 alle 18
Affiliato
Domus Immobiliare Srl
Via Camillo Cavour, 42 48100 Ravenna (RA)

2025 Tecnocasa Franchising S.p.A. - P. IVA 08365160152 - Via Monte Bianco 60/A 20089 Rozzano (MI). Ogni agenzia ha un proprio titolare ed è autonoma. Privacy policy | Policy utilizzo | Cookie policy