Quadrilocale in vendita

Ravenna, Via Pier Traversari - Centro
€ 229.000
4 locali 4 locali
158 Mq 158 Mq
2 bagni 2 bagni

Quadrilocale in vendita

Ravenna, Via Pier Traversari - Centro

Descrizione annuncio

RAVENNA, CENTRO STORICO.

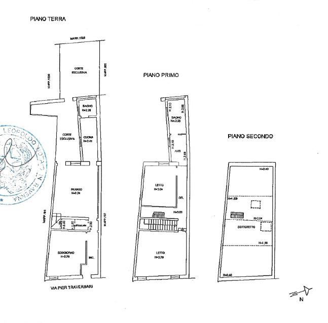
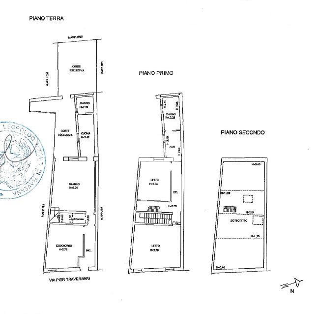
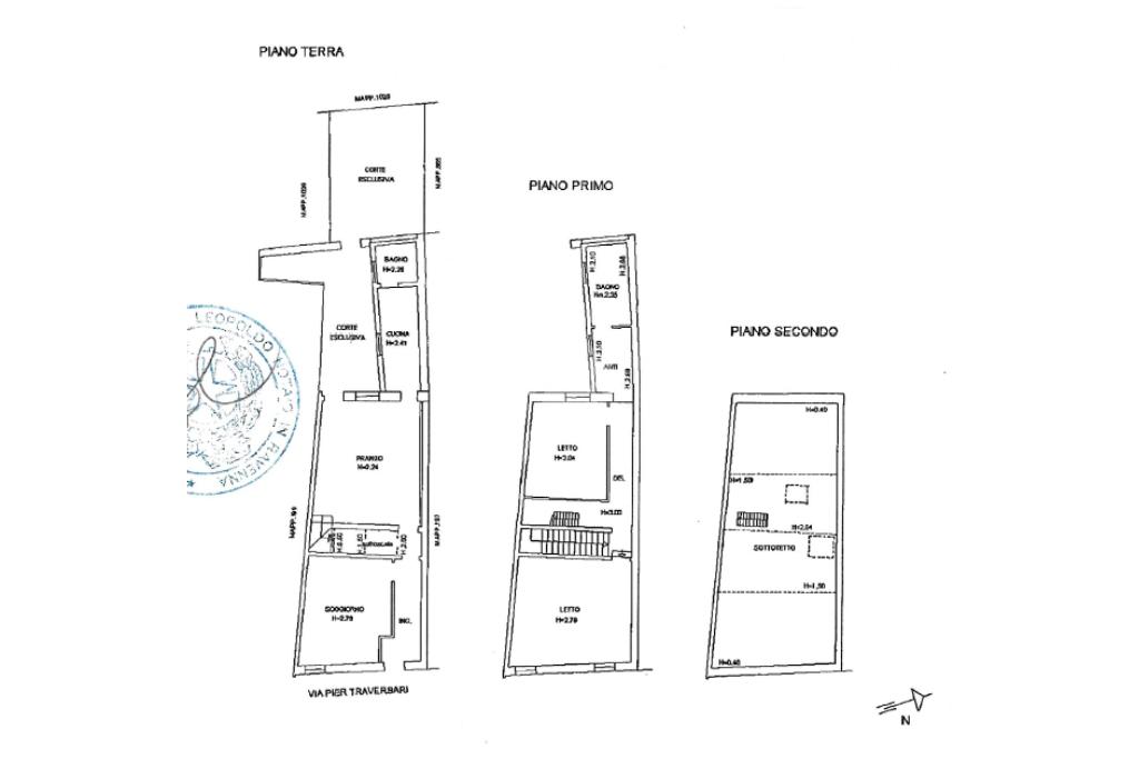
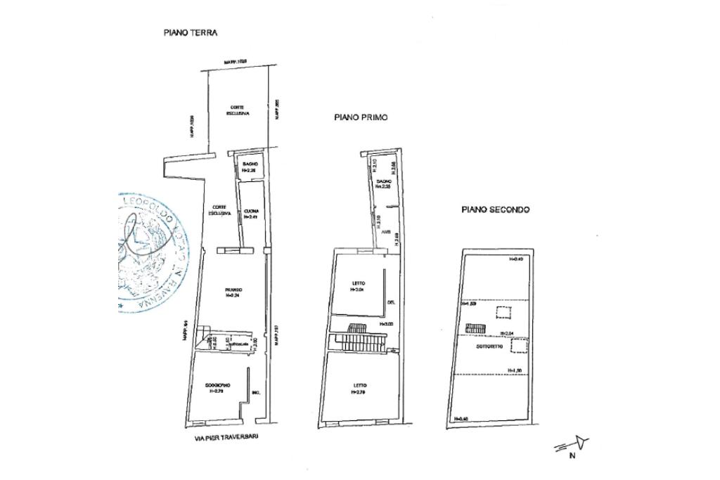
Nel cuore del centro di Ravenna, proponiamo in vendita un affascinante immobile su più livelli, perfetto per chi cerca spazio e comodità. Con una superficie di 158 mq, questa proprietà offre un'ampia versatilità grazie ai suoi quattro locali ben distribuiti.

Al piano terreno troviamo uno studio, posto nei pressi dell'ingresso, ed un accogliente soggiorno che si apre su un silenzioso e suggestivo giardino privato, con vista sul parco archeologico. Sempre al piano terra è presente una zona cottura, separata dal soggiorno, ed un bagno finestrato.

Al piano superiore troviamo due camere da letto che offrono un rifugio tranquillo ed il secondo bagno finestrato con comodo antibagno.

Su entrambi i piani sono presenti due pratici vani sottoscale.

Al secondo ed ultimo piano è presente una mansarda, ancora al grezzo, da sfruttare come zona jolly.

L'immobile, strutturato come le tipiche abitazioni del centro storico, conserva il fascino dell'epoca pur offrendo spazi funzionali per la vita moderna. Una soluzione ideale per chi desidera vivere nel cuore della città senza rinunciare alla tranquillità.

CHIAMACI per ulteriori informazioni o per fissare un appuntamento allo 0544.1885644 oppure invia una mail a raca0 e sarai ricontattato al più presto.

Ogni agenzia ha un proprio titolare ed è autonoma - Le presenti informazioni non costituiscono elemento contrattuale.

Mostra tutto

Nelle vicinanze

Trasporto pubblico Trasporto pubblico
stazione di Ravenna
stazione di Ravenna
840 m
Trasporto pubblico
480 m
Rocca Brancaleone II
Rocca Brancaleone II
520 m
Ricariche auto elettriche Ricariche auto elettriche
Eneldrive Porta Adriana
380 m
Ravenna B.Alighieri | EnelX Fast
490 m
Eneldrive Tomba di Dante
670 m
Eneldrive Parcheggio Stazione degli Autobus
970 m
Eneldrive Ardea Purpurea
1,1 Km
Scuole Scuole
Scuola elementare Filippo Mordani
340 m
Scuola primaria "Monsignor Morelli"
350 m
Ghiselli
350 m
Scuola elementare Riccardo Ricci
540 m
Università Degli Studi di Bologna
550 m
Farmacia Farmacia
Farmacia Ghigi
300 m
Farmacia Dradi
300 m
Farmacia dell'Aquila
400 m
Farmacia San Biagio
400 m
Farmacia del Portico
580 m
Ospedali Ospedali
Casa di cura San Francesco
630 m
Casa di cura "Domus Nova"
1,1 Km
Santa Maria delle Croci
1,4 Km
Pronto Soccorso
1,5 Km
Centro Iperbarico
2,9 Km
Supermercati Supermercati
Coop
580 m
Conad
810 m
In's
1,7 Km
Discount alimentare
1,9 Km
Famila
2,0 Km
Negozi Negozi
Eurospin - Discount
410 m
Il forno Argnani
450 m
La Stamperia dei Pascucci
470 m
Coin
520 m
Villaggio Globale
530 m
Bar Bar
Bar Cavour
270 m
La Tazza D'Oro
390 m
Roma
390 m
Bar
490 m
Merikipe
510 m
Ristoranti Ristoranti
Antica Bottega di Felice
210 m
Osteria Passatelli
210 m
Mariani
220 m
Piadineria Mosaico
230 m
Babaleus
240 m
Mostra tutto

Caratteristiche

Rif.:
61152698
Piano:
Su più livelli di 3
Totale piani:
3
Camere da letto:
2
Arredamento:
Assente
Condizionamento:
Assente
Mostra tutto
Prezzo Prezzo
€ 229.000
Rata mutuo Rata mutuo
€ 1.087 / mese
Spese annue Spese annue
€ 0
Proponi il tuo prezzoProponi il tuo prezzo

Classe Energetica

Questo immobile è esente da classe energetica
Anno di costruzione:
1950
Riscaldamento:
Autonomo
Tipo impianto:
A radiatori
Tipo alimentazione:
Metano

Ti interessa visionare l'immobile?

Fissa un appuntamento  Fissa un appuntamento

Richiedi informazioni

Clicca su Leggi per aprire l'informativa
* Questi campi sono obbligatori

Calcola il tuo mutuo

Semplice e senza impegno
Anticipo

( % )
Mutuo

( % )

pochi semplici passi

inserisci i tuoi dati
Questionario completato
Grazie per aver richiesto un appuntamento senza impegno con un nostro Consulente del Credito e Assicurativo.

Hai inserito correttamente tutti i dati necessari e a breve riceverai una e-mail con un link da convalidare per inviare i tuoi dati.
Affiliato
Domus Immobiliare Srl
Via Camillo Cavour, 42 48100 Ravenna (RA)

Il nostro staff


  • Matteo Chiesa
    Affiliato

  • Mattia Francesco Mauro
    Collaboratore
Via Camillo Cavour, 42 48100 Ravenna (RA)
Zona: Centro Storico-Teodorico-Mattei-Darsena-Forese
Mostra su mappa
Orari: Lun. - Ven. dalle 9.30 alle 13 e dalle 15 alle 19.30 / Sab. dalle 9.30 alle 13 e dalle 15 alle 18
Affiliato
Domus Immobiliare Srl
Via Camillo Cavour, 42 48100 Ravenna (RA)

2026 Tecnocasa Franchising S.p.A. - P. IVA 08365160152 - Via Monte Bianco 60/A 20089 Rozzano (MI). Ogni agenzia ha un proprio titolare ed è autonoma. Privacy policy | Policy utilizzo | Cookie policy