Trilocale in vendita

Ravenna, Via Gambellara - Gambellara
€ 133.000
3 locali 3 locali
82 Mq 82 Mq
2 bagni 2 bagni

Trilocale in vendita

Ravenna, Via Gambellara - Gambellara

Descrizione annuncio

RAVENNA, località GAMBELLARA.

Nel tranquillo contesto di Gambellara, nel comune di Ravenna, è disponibile un immobile in vendita che offre comfort e funzionalità.

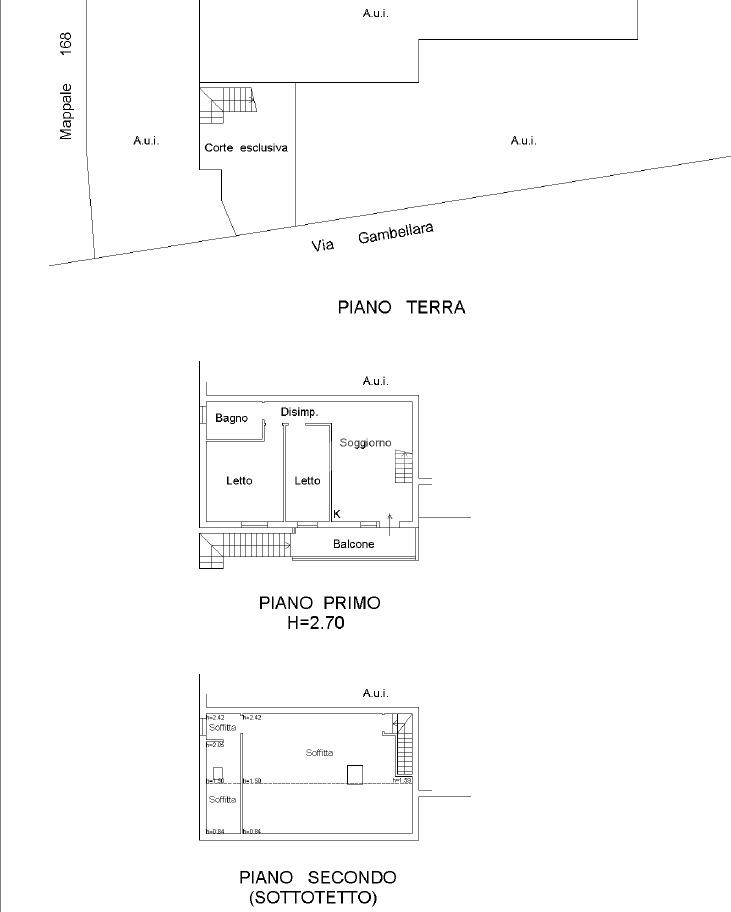
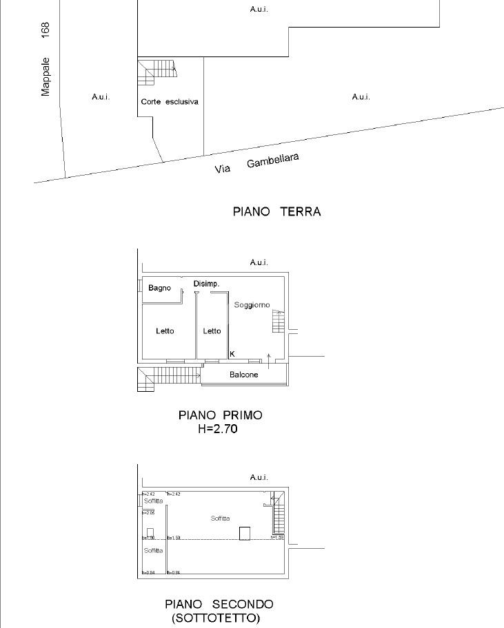
Situato in un piccolo condominio di costruzione degli anni 2003-2004, l'abitazione si sviluppa su due livelli e vanta un ingresso indipendente.

L'immobile ha ingresso da scala esterna, rifatta da pochissimo, dove si accede subito nella zona cucina-soggiorno-pranzo, e da quì si prosegue nella zona notte, che comprende due camere da letto e il primo bagno, finestrato e con attacchi per lavatrice.

Tornando all'ingresso, e prendendo la scala interna - realizzata in marmo - ci spostiamo al piano superiore, mansardato, dove troviamo un ampio spazio open-space ideale come terza camera o studio o sala hobby, ed il secondo bagno, anch'esso finestrato.

Un balcone e una corte esclusiva arricchiscono l'offerta, permettendo di godere di spazi esterni privati e comodi.
La presenza di impianto di aria condizionata assicura comfort in ogni stagione.

Completa la proprietà un posto auto di proprietà, e una corte esterna condominiale con giardino, sfruttabile tranquillamente per momenti di relax e per fare anche dei barbecue in compagnia.

Un ulteriore vantaggio di questa soluzione sono sicuramente le basse spese condominiali.

Costruito nel 2004, questo immobile è ideale per chi cerca una soluzione abitativa moderna e funzionale.

CHIAMACI per ulteriori informazioni o per fissare un appuntamento allo 0544.1885644 oppure invia una mail a raca0 e sarai ricontattato al più presto.

Ogni agenzia ha un proprio titolare ed è autonoma - Le presenti informazioni non costituiscono elemento contrattuale.

Mostra tutto

Nelle vicinanze

Bar Bar
Bar
2,4 Km
Ristoranti Ristoranti
Osteria del Pancotto
370 m
Mostra tutto

Caratteristiche

Rif.:
61116224
Piano:
1 di 2 (Piano su più livelli)
Posti auto:
1
Balconi:
1
Camere da letto:
2
Arredamento:
Parziale
Mostra tutto
Prezzo Prezzo
€ 133.000
Rata mutuo Rata mutuo
€ 609 / mese
Spese annue Spese annue
€ 300
Proponi il tuo prezzoProponi il tuo prezzo

Classe Energetica

E
E
E
E
E
E
E
E
E
EP invernale del fabbricato:
EP estiva del fabbricato:
Anno di costruzione:
2004
Riscaldamento:
Autonomo
Tipo impianto:
A radiatori
Tipo alimentazione:
Metano

Ti interessa visionare l'immobile?

Fissa un appuntamento  Fissa un appuntamento

Richiedi informazioni

* Questi campi sono obbligatori

Calcola il tuo mutuo

Semplice e senza impegno
Anticipo

( % )
Mutuo

( % )

pochi semplici passi

inserisci i tuoi dati
Questionario completato
Grazie per aver richiesto un appuntamento senza impegno con un nostro Consulente del Credito e Assicurativo.

Hai inserito correttamente tutti i dati necessari e a breve riceverai una e-mail con un link da convalidare per inviare i tuoi dati.
Affiliato
Domus Immobiliare Srl
Via Camillo Cavour, 42 48100 Ravenna (RA)

Il nostro staff


  • Matteo Chiesa
    Affiliato

  • Mattia Francesco Mauro
    Collaboratore
Via Camillo Cavour, 42 48100 Ravenna (RA)
Zona: Centro Storico-Teodorico-Mattei-Darsena-Forese
Mostra su mappa
Orari: Lun. - Ven. dalle 9.30 alle 13 e dalle 15 alle 19.30 / Sab. dalle 9.30 alle 13 e dalle 15 alle 18
Affiliato
Domus Immobiliare Srl
Via Camillo Cavour, 42 48100 Ravenna (RA)

2025 Tecnocasa Franchising S.p.A. - P. IVA 08365160152 - Via Monte Bianco 60/A 20089 Rozzano (MI). Ogni agenzia ha un proprio titolare ed è autonoma. Privacy policy | Policy utilizzo | Cookie policy