Bilocale in vendita

Ravenna, Centro Storico - Centro
€ 179.000
Prezzo aggiornato
3 locali 3 locali
60 Mq 60 Mq
1 bagno 1 bagno

Bilocale in vendita

Ravenna, Centro Storico - Centro

Descrizione annuncio

RAVENNA, zona CENTRO.

In piccolo contesto condominiale proponiamo un interessante soluzione al primo piano, servita da ascensore.

La soluzione è ready to live, con la maggiorparte dei mobili appena acquistati dalla proprietà, e ottima anche come forma di investimento.

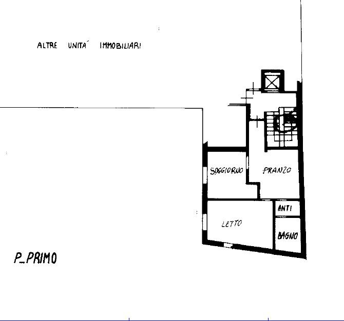
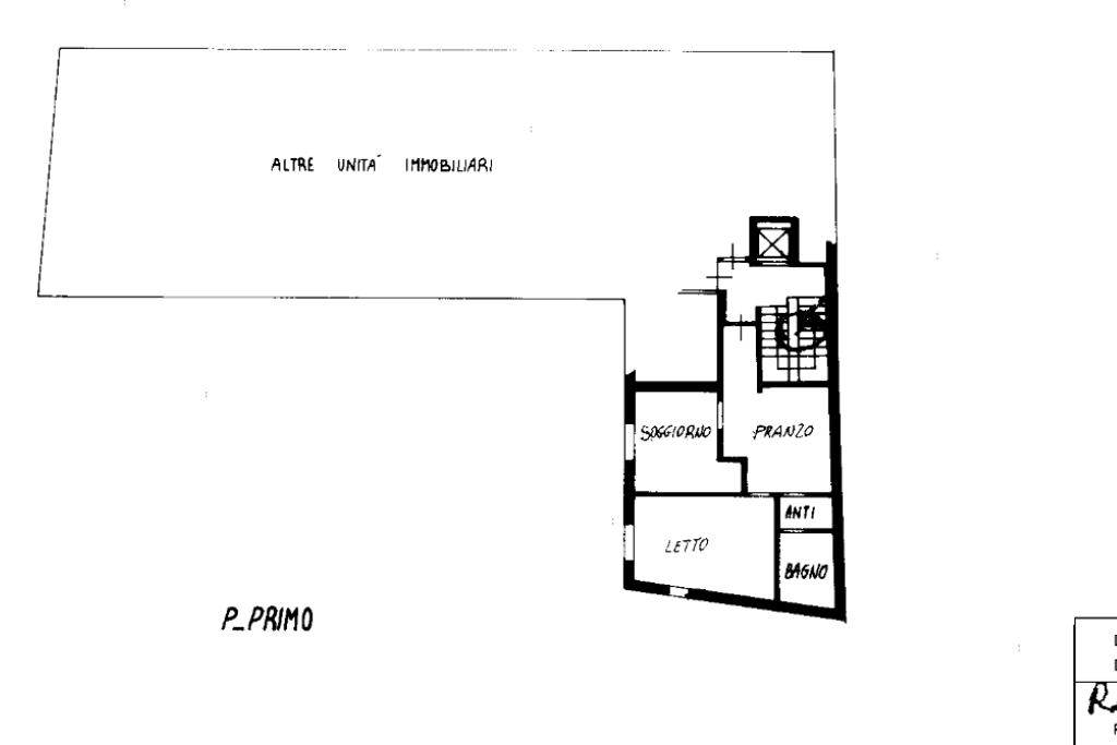
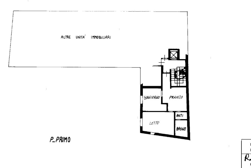
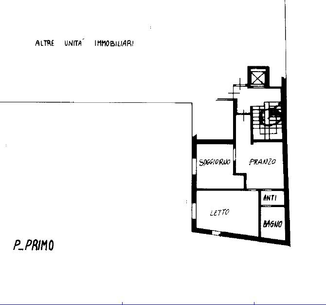
Si compone di un ingresso su ampia cucina-zona pranzo, collegata al locale soggiorno (che in caso di necessità potrebbe diventare anche la seconda camera); alla cucina si collega il bagno con antibagno, anch'essi dagli spazi molto generosi, e dove troviamo presente attacco per lavatrice e box doccia.

La camera da letto matrimoniale ha un doppio affaccio, e gode di molta luminosità, così come tutto l'appartamento vista la presenza di numerose superfici finestrate.

Al piano terra c'è inoltre uno spazio esterno condominiale e la possibilità, in accordo con i vicini,di sostare un auto nella corte principale di ingresso al condominio.

Ottima soluzione per chi vuole rimanere in pieno centro storico ma ama anche avere una maggior tranquillità e privacy.

CHIAMACI per ulteriori informazioni o per fissare un appuntamento allo 0544.1885644 oppure invia una mail a raca0 e sarai ricontattato al più presto.

Ogni agenzia ha un proprio titolare ed è autonoma - Le presenti informazioni non costituiscono elemento contrattuale.

Mostra tutto

Nelle vicinanze

Trasporto pubblico Trasporto pubblico
stazione di Ravenna
stazione di Ravenna
600 m
Trasporto pubblico
190 m
Rocca Brancaleone I
Rocca Brancaleone I
450 m
Ricariche auto elettriche Ricariche auto elettriche
Ravenna B.Alighieri | EnelX Fast
290 m
Eneldrive Tomba di Dante
340 m
Eneldrive Porta Adriana
550 m
Eneldrive Parcheggio Stazione degli Autobus
700 m
RAVENNA Santi Baldini | ENELX
830 m
Scuole Scuole
Università Degli Studi di Bologna
210 m
Scuola elementare Filippo Mordani
220 m
Ghiselli
230 m
Istituto Paritario San Vincenzo de' Paoli
300 m
Liceo Classico
300 m
Farmacia Farmacia
Farmacia dell'Aquila
200 m
Farmacia del Portico
300 m
Farmacia Dradi
370 m
Farmacia Ghigi
380 m
Comunale 6
500 m
Ospedali Ospedali
Casa di cura San Francesco
710 m
Casa di cura "Domus Nova"
1,3 Km
Santa Maria delle Croci
1,3 Km
Pronto Soccorso
1,4 Km
Supermercati Supermercati
Coop
250 m
Conad
940 m
In's
1,5 Km
Discount alimentare
1,6 Km
Famila
1,7 Km
Negozi Negozi
Coin
200 m
Il forno Argnani
200 m
La Stamperia dei Pascucci
230 m
Villaggio Globale
250 m
Magilla
390 m
Bar Bar
Roma
140 m
La Tazza D'Oro
150 m
Bar
170 m
Sentebova Tatyana Tatyana
200 m
Ferrari
230 m
Ristoranti Ristoranti
I Furfanti
50 m
Orient-Espresso
80 m
La Gardela
90 m
Caffè del Ponte Marino
100 m
Cappello
100 m
Mostra tutto

Caratteristiche

Rif.:
61110296
Piano:
1 di 3 con ascensore (Piano basso)
Camere da letto:
1
Arredamento:
Completo
Condizionamento:
Predisposizione impianto
Ascensore:
Mostra tutto
Prezzo Prezzo
€ 179.000
Rata mutuo Rata mutuo
€ 844 / mese
Spese annue Spese annue
€ 1.300
Proponi il tuo prezzoProponi il tuo prezzo
Immobile valutato con T·Valuta

Classe Energetica

F
F
F
F
F
F
F
F
F
EP globale non rinnovabile:
137.76 kW h/m² anno
EP invernale del fabbricato:
EP estiva del fabbricato:
Anno di costruzione:
2000
Riscaldamento:
Autonomo
Tipo impianto:
A radiatori
Tipo alimentazione:
Metano

Prezzo ridotto di €1 (4%%)

Ti interessa visionare l'immobile?

Fissa un appuntamento  Fissa un appuntamento

Richiedi informazioni

Clicca su Leggi per aprire l'informativa
* Questi campi sono obbligatori

Calcola il tuo mutuo

Semplice e senza impegno
Anticipo

( % )
Mutuo

( % )

pochi semplici passi

inserisci i tuoi dati
Questionario completato
Grazie per aver richiesto un appuntamento senza impegno con un nostro Consulente del Credito e Assicurativo.

Hai inserito correttamente tutti i dati necessari e a breve riceverai una e-mail con un link da convalidare per inviare i tuoi dati.
Affiliato
Domus Immobiliare Srl
Via Camillo Cavour, 42 48100 Ravenna (RA)

Il nostro staff


  • Matteo Chiesa
    Affiliato

  • Mattia Francesco Mauro
    Collaboratore
Via Camillo Cavour, 42 48100 Ravenna (RA)
Zona: Centro Storico-Teodorico-Mattei-Darsena-Forese
Mostra su mappa
Orari: Lun. - Ven. dalle 9.30 alle 13 e dalle 15 alle 19.30 / Sab. dalle 9.30 alle 13 e dalle 15 alle 18
Affiliato
Domus Immobiliare Srl
Via Camillo Cavour, 42 48100 Ravenna (RA)

2025 Tecnocasa Franchising S.p.A. - P. IVA 08365160152 - Via Monte Bianco 60/A 20089 Rozzano (MI). Ogni agenzia ha un proprio titolare ed è autonoma. Privacy policy | Policy utilizzo | Cookie policy