6 locali in vendita

Ravenna, Via Luigi Rava - Centro
€ 359.000
Prezzo aggiornato
6 locali 6 locali
183 Mq 183 Mq
3 bagni 3 bagni

6 locali in vendita

Ravenna, Via Luigi Rava - Centro

Descrizione annuncio

RAVENNA, zona CENTRO.

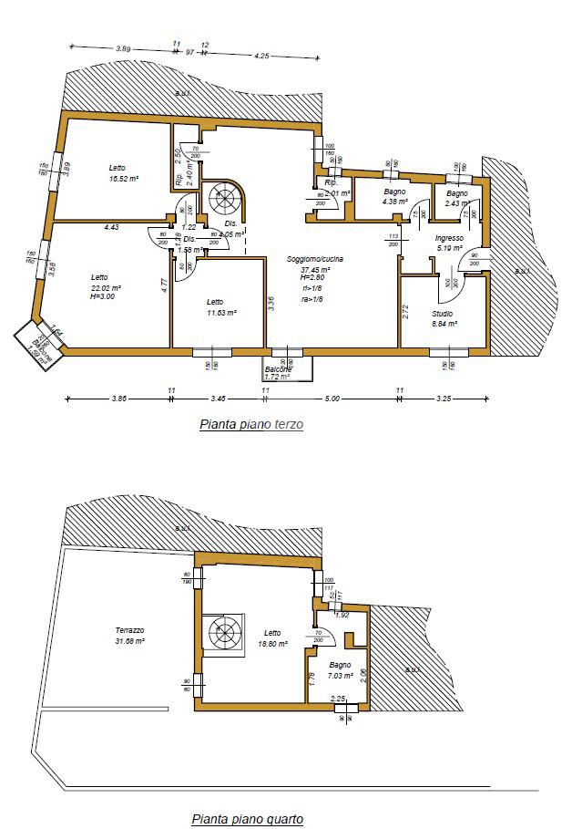
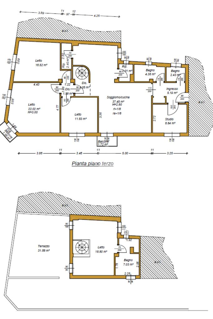
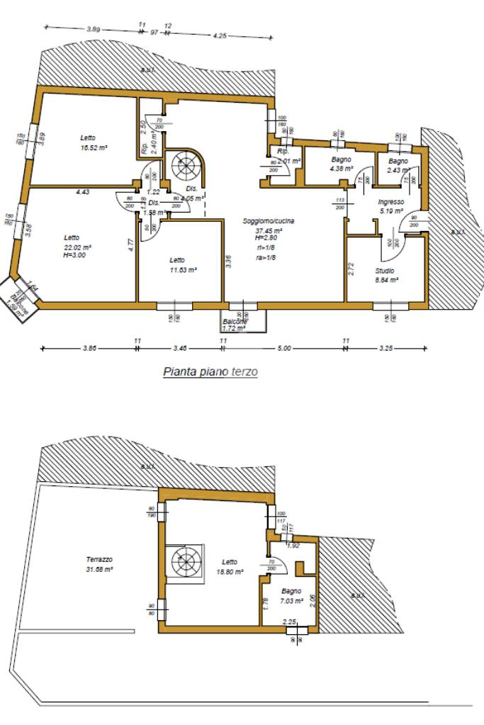
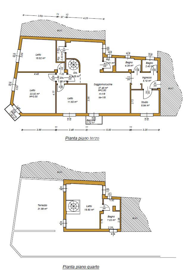
Nel cuore del centro storico di Ravenna, proponiamo un ampio appartamento di circa 190 mq, situato all'ultimo piano di un piccolo complesso condominiale, senza ascensore, e disposto su due livelli.

L'immobile è stato completamente ristrutturato al piano principale e più grande, dove sono stati studiati e divisi gli spazi in maniera ottimale per offrire massimo comfort e funzionalità.

A questo piano, il terzo, entriamo da subito nel disimpegno, che da una parte ci fa entrare nello studio (volendo da utilizzare come ulteriore cameretta) e proseguendo ci sposta nella zona giorno, un'area di circa 40 mq, strutturata in maniera molto intelligente, dove si divide la parte relax-soggiorno e la parte cucina, strutturata anche con un angolo colazione con penisola; quì troviamo anche il primo balcone, con affaccio diretto su Piazza Mameli e sulla Chiesa di Santo Stefano e che fornisce una buona luminosità alla stanza.

La zona notte è invece composta da 3 ampie camere da letto, di cui 2 matrimoniali e 1 doppia. Sono presenti inoltre 2 ripostigli, uno più grande dov'è presente il vano tecnico e lo spazio per la lavatrice.

I bagni a servizio a questo piano dell'immobile sono 2, entrambi finestrati e quello più grande, padronale, dotato di box doccia.

La soluzione offre poi un ulteriore spazio al piano superiore, collegato da una scala a chiocciola interna in legno dalla quale si accede ad un un unico locale; questo spazio è ad oggi posto in locazione parziale, con regolare contratto transitorio, per un importo di € 500,00 mensili.

Uno dei punti di forza della proposta, presente a questo piano, è l'ampio terrazzo di circa 35 mq, ad uso esclusivo e di proprietà, un' 'oasi' privata dove godersi bellissimi momenti di relax all'aperto con vista su tutti i tetti della città.

La parte impiantistica, tutta certificata, è composta da un impianto con stufa a pellet, che fornisce riscaldamento a tutti gli ambienti della casa, da un boiler di ultima generazione che fornisce acqua calda e da un impianto di aria condizionata a pompa di calore.

A disposizione dell'appartamento è presente inoltre una cantina ciclabile di circa 6 mq, di proprietà.


E' stato realizzato già un progetto e preventivo anche per l'installazione di un vano ascensore; anche se ad oggi non è stato portato avanti, si ha la certezza appunto della sua fattibillità.

Classe energetica C - che si trasformerà in B a breve.

CHIAMACI per ulteriori informazioni o per fissare un appuntamento allo 0544.1885644 oppure invia una mail a raca0 e sarai ricontattato al più presto.

Ogni agenzia ha un proprio titolare ed è autonoma - Le presenti informazioni non costituiscono elemento contrattuale.

Mostra tutto

Nelle vicinanze

Trasporto pubblico Trasporto pubblico
stazione di Ravenna
stazione di Ravenna
280 m
Trasporto pubblico
120 m
Rocca Brancaleone I
Rocca Brancaleone I
190 m
Ricariche auto elettriche Ricariche auto elettriche
Ravenna B.Alighieri | EnelX Fast
80 m
Eneldrive Parcheggio Stazione degli Autobus
400 m
Eneldrive Tomba di Dante
460 m
RAVENNA Santi Baldini | ENELX
770 m
Ravenna Parcheggio ex macello | EnelX
840 m
Scuole Scuole
Liceo Classico
160 m
I.T.C.
200 m
Ghiselli
220 m
Università Degli Studi di Bologna
320 m
Istituto Paritario San Vincenzo de' Paoli
390 m
Farmacia Farmacia
Comunale 6
180 m
Farmacia Dradi
370 m
Farmacia dell'Aquila
510 m
Farmacia del Portico
530 m
Farmacia Del Candiano
610 m
Ospedali Ospedali
Casa di cura San Francesco
580 m
Casa di cura "Domus Nova"
1,6 Km
Santa Maria delle Croci
1,6 Km
Pronto Soccorso
1,7 Km
Supermercati Supermercati
Coop
190 m
Conad
900 m
In's
1,2 Km
Famila
1,4 Km
Discount alimentare
1,5 Km
Negozi Negozi
Magilla
90 m
Coin
180 m
Il forno Argnani
490 m
Villaggio Globale
500 m
La Stamperia dei Pascucci
520 m
Bar Bar
The Sister's
70 m
Bar
190 m
Sentebova Tatyana Tatyana
360 m
Roma
440 m
La Tazza D'Oro
460 m
Ristoranti Ristoranti
Al 45
190 m
Osteria Piattoforte
230 m
Antica Zecca
310 m
I Furfanti
360 m
Ristorante Al Passatore
380 m
Mostra tutto

Caratteristiche

Rif.:
61102893
Piano:
3 di 3 (ultimo Piano)
Balconi:
1
Terrazzi:
1
Camere da letto:
3
Arredamento:
Completo
Mostra tutto
Prezzo Prezzo
€ 359.000
Rata mutuo Rata mutuo
€ 1.693 / mese
Spese annue Spese annue
€ 1.200
Proponi il tuo prezzoProponi il tuo prezzo

Classe Energetica

C
C
C
C
C
C
C
C
C
EP globale non rinnovabile:
129.86 kW h/m² anno
EP globale rinnovabile:
175.50 kW h/m² anno
EP invernale del fabbricato:
EP estiva del fabbricato:
Anno di costruzione:
1960
Riscaldamento:
Autonomo
Tipo impianto:
A stufa
Tipo alimentazione:
Altro

Prezzo ridotto di €1 (5%%)

Ti interessa visionare l'immobile?

Fissa un appuntamento  Fissa un appuntamento

Richiedi informazioni

Clicca su Leggi per aprire l'informativa
* Questi campi sono obbligatori

Calcola il tuo mutuo

Semplice e senza impegno
Anticipo

( % )
Mutuo

( % )

pochi semplici passi

inserisci i tuoi dati
Questionario completato
Grazie per aver richiesto un appuntamento senza impegno con un nostro Consulente del Credito e Assicurativo.

Hai inserito correttamente tutti i dati necessari e a breve riceverai una e-mail con un link da convalidare per inviare i tuoi dati.
Affiliato
Domus Immobiliare Srl
Via Camillo Cavour, 42 48100 Ravenna (RA)

Il nostro staff


  • Matteo Chiesa
    Affiliato

  • Mattia Francesco Mauro
    Collaboratore
Via Camillo Cavour, 42 48100 Ravenna (RA)
Zona: Centro Storico-Teodorico-Mattei-Darsena-Forese
Mostra su mappa
Orari: Lun. - Ven. dalle 9.30 alle 13 e dalle 15 alle 19.30 / Sab. dalle 9.30 alle 13 e dalle 15 alle 18
Affiliato
Domus Immobiliare Srl
Via Camillo Cavour, 42 48100 Ravenna (RA)

2025 Tecnocasa Franchising S.p.A. - P. IVA 08365160152 - Via Monte Bianco 60/A 20089 Rozzano (MI). Ogni agenzia ha un proprio titolare ed è autonoma. Privacy policy | Policy utilizzo | Cookie policy